- Agence immobilière à Sanary-sur-Mer
- Vente
- Var
- La seyne sur mer
- VIAGER OCCUPÉ AVEC GARAGE
Référence : AVVI10000279
Calculette
Partager
VIAGER OCCUPÉ AVEC GARAGE
Description de l'offre
LOCALISATION : La Seyne sur Mer, quartier Porte Marine, à deux pas des commerces et du bord de mer.
CARACTÉRISTIQUES DE L'APPARTEMENT :
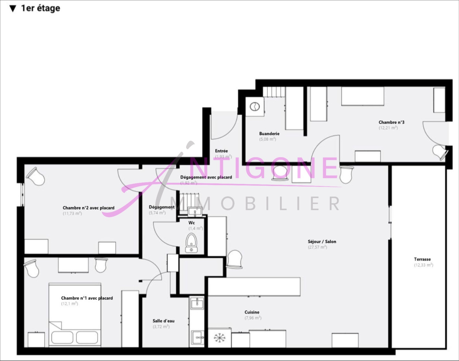
Surface habitable : Environ 91 m², appartement traversant avec trois chambres, situé dans une résidence récente construite en 2009.
Intérieur :
- Séjour de 27 m²
- Cuisine de 8 m² (ouvrable sur le séjour)
- Trois chambres de 12 m², dont une actuellement en bureau
- Salle de d'eau de 4 m²
- Wc Séparés
- Hall d'entrée de 4 m² avec placard
Extérieur :
- Terrasse de 12 m2 couverte exposée ouest
Équipement de l'appartement
- Climatisation dans le séjour
- Double vitrage + volet roulant motorisé
Annexes inclues :
- Une garage sécurisé de 17 m2
Conditions du viager :
Type : Viager occupé (droit d’usage et d’habitation conservé par le vendeur)
Profil du occupant : Femme 84 ans
Bouquet (à verser comptant à la signature) : 80 000 €
Rente viagère mensuelle : 1 250 €
Valeur vénale estimée : 330 000 €
Avantage : Pas de charges locatives à supporter, entretien à la charge de l’occupant
Descriptif du bien
- Code postal : 83500
- Surface habitable (m²) : 91 m²
- Surface loi Carrez (m²) : 91 m²
- Nombre de chambre(s) : 3
- Nombre de pièces : 4
- Etage : 1
- Nombre de niveaux : 1
- Nb de salle d'eau : 1
- Cuisine : AMERICAINE
- Type de cuisine : EQUIPEE
- Mode de chauffage : Climatisation
- Type de chauffage : Air pulsé
- Format de chauffage : Individuel
- Interphone : OUI
- Visiophone : OUI
- Terrasse : OUI
- Murs mitoyens : 4
- Nombre de garage : 1
- Exposition : EST-OUEST
- Copropriété : NON
- plan de sauvegarde : NON
- statut du syndic : pas de procédure en cours
- Prix de vente : 80 000 €
- Les honoraires d'agence seront intégralement à la charge du vendeur
- Taxe foncière annuelle : 2 174 €
- Rente mensuelle : 1 250 €
- TRAD_DETAIL_infosfi_DEFAULT_valeur_venale : 330 000 €
- Prix bouquet : 80 000 €
Montant estimé des dépenses annuelles d'énergie pour un usage standard est compris entre 960 € et 1 360 € . Prix moyens des énergies indexés sur les années 2021, 2022 et 2023 (abonnements compris).
La ville de La Seyne-sur-Mer (83500)
Nous Contacter
Afficher le téléphone 04 94 324 722Les informations recueillies sur ce formulaire sont enregistrées dans un fichier informatisé par La Boite Immo agissant comme Sous-traitant du traitement pour la gestion de la clientèle/prospects de l'Agence / du Réseau qui reste Responsable du Traitement de vos Données personnelles.
La base légale du traitement repose sur l'intérêt légitime de l'Agence / du Réseau.
Elles sont conservées jusqu'à demande de suppression et sont destinées à l'Agence / au Réseau.
Conformément à la loi « informatique et libertés », vous disposez des droits d’accès, de rectification, d’effacement, d’opposition, de limitation et de portabilité de vos données. Vous pouvez retirer votre consentement à tout moment en contactant directement l’Agence / Le Réseau.
Consultez le site https://cnil.fr/fr pour plus d’informations sur vos droits.
Si vous estimez, après avoir contacté l'Agence / le Réseau, que vos droits « Informatique et Libertés » ne sont pas respectés, vous pouvez adresser une réclamation à la CNIL.
Nous vous informons de l’existence de la liste d'opposition au démarchage téléphonique « Bloctel », sur laquelle vous pouvez vous inscrire ici : https://www.bloctel.gouv.fr
Dans le cadre de la protection des Données personnelles, nous vous invitons à ne pas inscrire de Données sensibles dans le champ de saisie libre.
Ce site est protégé par reCAPTCHA, les Politiques de Confidentialité et les Conditions d'Utilisation de Google s'appliquent.
